На вказану електронну адресу було надіслано повідомлення для підтвердження реєстрації
У Львові погодили будівництво підземного паркінгу на площі Міцкевича
- 137
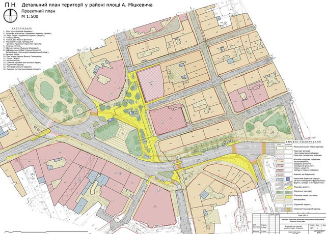
Львівські депутати погодили, щоб у центрі Львова облаштували пішохідну площу та змінили організацію дорожнього руху. За відповідну ухвалу проголосували 39 депутатів.
Про це повідомляє Zahid.net.
Читайте також: Львів вперше заробив мільярд гривень на малій приватизації комунального майна
Депутати Львівської міської ради погодили детальний план території в районі площі Міцкевича, що передбачає будівництво підземного паркінгу під площею та реорганізацію руху в центрі міста.
Згідно з ДПТ, що охоплює площу 1,66 га, під пам'ятником Адаму Міцкевичу в центрі Львова збудують однорівневий підземний паркінг на 40 місць. Заїзди та виїзди з паркінгу облаштують з обох сторін пам'ятника Міцкевичу. Крім цього, сміттєві контейнери, що зараз розташовані на площі, замінять на підземні.
Саму площу Міцкевича реконструюють та зроблять пішохідною, а також змінять організацію дорожнього руху. Зокрема одну зі смуг руху ліквідують і перенесуть як додаткову перед пам’ятником. Поблизу наявного підземного переходу, який планують зберегти, мають облаштувати й наземний перехід в рівень із проїзною частиною. На тій частині площі, що стане пішохідною, створять відпочинкову зону з лавками та озелененням", – йдеться у повідомленні.
Відомо, за розробкою детального плану в районі площі Міцкевича до Львівської міськради звернулося ТзОВ "Центр розвитку нерухомості", що будує поруч 25-метровий готель. Тепер компанія має звернутися до мерії щодо зміни цільового призначення ділянки під паркінг та отримати містобудівні умови та обмеження. Будівництву мають передувати комплексні археологічні дослідження.
Згідно з даними аналітичної системи YouControl, ТзОВ "Центр розвитку нерухомості" входить в Універсальну інвестиційну групу бізнесмена Віталія Антонова. Ключові компанії цієї групи – це ПАТ "Концерн Галнафтогаз" та ПАТ "Концерн Хлібпром".
Це цікаво: Чорні Запорожці показали, як знищили бліндаж окупантів – відео
-
14:00Лляна постіль прослужить роками: як правильно прати тканину, щоб не зіпсувати її
-
13:00Не робіть так під час прибирання: чому гаряча вода лише псує підлогу
-
12:00Коти забувають про котячу м’яту: вчені назвали рослину, яка діє на них ще сильніше
-
11:23Рекрутинг у MilTech: як ITExpert наймає фахівців на перетині оборонних технологій та IT
-
11:00Чому зимове взуття варто купувати влітку: як зекономити та не пошкодувати про вибір
-
Українські патріотичні пісні: плейлист, який підіймає дух
-
10:10Розсада перестане гинути після висадки: 5 помилок, які можуть зіпсувати майбутній урожай
-
10:00Коли буде День Святого Духа і Петра і Павла: церковний календар на червень на щодень
-
09:00Неприємний запах у пральній машині зникне за копійки: допоможе простий засіб із ванної кім
-
05:30Не відкладайте на завтра: 20 травня зірки дають останній шанс завершити розпочате
- 19 травня
-
22:00Чому українці по всьому світу дедалі частіше вдягають вишиванки не лише на свята
-
21:23Яке свято відзначають 20 травня: традиції, заборони і прикмети на цей день
-
21:00День вишиванки 2026 – як українці перетворили міста на справжній етнофест
-
20:25"Припинда" повертається: старовинне українське слово раптово стало модним у TikTok
-
З Днем народження: топ 75 привітань у картинках, віршах, прозі та смс українською
-
19:30Як позбутися запаху кота вдома – прості лайфхаки, які реально працюють
-
18:00Чому коти люблять спати в ногах господаря – ветеринари пояснили милий сигнал довіри
-
17:28Не лише цукор: які добавки в продуктах можуть нашкодити здоров’ю
-
17:15У Києві хочуть підвищити проїзд до 30 гривень: коли можуть запровадити нові тарифи
-
17:00Червень змінить правила гри: зірки назвали знаки, яких чекає найсильніший місяць року
-
16:10У Молдові скандал через бали журі на Євробаченні: глава мовника подав у відставку
-
15:00Морква звариться за 5 хвилин: кухарі розкрили простий лайфхак для господинь
-
14:00Вареники з полуницею будуть ніжні, як хмаринка: рецепт сезонної страви на парі
-
13:00Штраф за бузок: чому українцям забороняють ламати квітучі кущі навесні
-
12:00Як позбутися тривожності та перестати себе накручувати: прості поради на кожен день
-
13:00Не робіть так під час прибирання: чому гаряча вода лише псує підлогу
-
10:00Коли буде День Святого Духа і Петра і Павла: церковний календар на червень на щодень
-
05:30Не відкладайте на завтра: 20 травня зірки дають останній шанс завершити розпочате
- 19 травня
-
21:23Яке свято відзначають 20 травня: традиції, заборони і прикмети на цей день
-
17:15У Києві хочуть підвищити проїзд до 30 гривень: коли можуть запровадити нові тарифи
-
17:00Червень змінить правила гри: зірки назвали знаки, яких чекає найсильніший місяць року
-
10:10LELÉKA повернулася до Києва після Євробачення-2026: що планує робити далі
-
05:30Зірки назвали знаки, яким 19 травня принесе несподіваний поворот
- 18 травня
-
21:23Яке свято відзначають 19 травня: традиції, заборони і прикмети на цей день
-
05:30Не розганяйтеся сьогодні: 18 травня нагороджує тих, хто діє точно, а не швидко
- 17 травня
-
21:22Яке свято відзначають 18 травня: традиції, заборони і прикмети на цей день
-
05:30Забудьте про обережність: 17 травня зірки винагороджують тих, хто ризикує мріяти
-
02:00Хто переміг на Євробаченні-2026: чи вдалось фаворитам посісти 1 місце
- 16 травня
-
21:21Яке свято відзначають 17 травня: традиції, заборони і прикмети на цей день
-
19:15Гавкала та кричала: Брітні Спірс потрапила у скандал через поведінку в ресторані
-
19:00Домашній соус барбекю за 10 хвилин – рецепт, після якого магазинний більше не захочеться
-
14:55Гранд-фінал Євробачення-2026: коли виступить Україна та де дивитися конкурс
-
05:30Не чіпляйтеся за минуле: кому 16 травня зірки дають зелене світло на новий старт
- 15 травня
-
21:23Яке свято відзначають 16 травня: традиції, заборони і прикмети на цей день
-
05:3015 травня покаже, які стосунки тримаються на чомусь справжньому – а які лише на звичці
- 14 травня
-
21:23Яке свято відзначають 15 травня: традиції, заборони і прикмети на цей день
-
13:55Олена Тополя зізналася, за яку суму готова знову поїхати на Євробачення
-
05:30Зорі попереджають: 14 травня покаже слабкі місця в планах – і це найкраще за сьогодні
- 13 травня
-
21:23Яке свято відзначають 14 травня: традиції, заборони і прикмети на цей день
-
19:30LELÉKA розкрила бюджет участі у Євробаченні: скільки коштує номер співачки